What’s Included In Your Custom Home Plan Sets

Yay! You just received your custom home plans and now you have to review the blueprints, but what’s even included and what does any of it even mean?!?! I get it, if you’ve never had to look at plans before they can be super overwhelming and confusing. We’ll go over what is included, what to look for, and where to locate key elements.

There’s a couple different types of floorplan sets you could be receiving depending on the service.

  1. Custom plan set. This is the initial set you’ll get, where you’ll be seeing the plan based on our initial discussions and inspiration. This set has all the doors, windows, and other information necessary for a first look.

  2. Preliminary plan set(s). A more in depth set after the custom set. This set adds building details, electrical, and other specifics that make the set ready for your home builder to get bids.

  3. Final build plan set. The final set with any and all revisions and details and notes and ready for your builder to start building with.

  4. Furniture plan set. This is for my virtual interior clients or home build clients that add on interior design services. This set shows furniture layouts and placement details ready for implementation based on selections.

Each home plan set has more or less information based off what’s needed and were you’re at in the process, but here’s (almost) everything that could possibly be seen in any of the home plans you receive. And if it’s not making any sense, that’s okay! I’m more than happy to help and that’s also why I include 3D walkthroughs and renders with my services. It adds an extra layer to understanding exactly what your home will end up looking like.

Pages in Your Home Plan Set

There are a variety of pages within a set of construction documents (aka plan set). Each has it’s own information and breaks down each portion of the home. A final buildable set of construction documents can have any or all of the following pages: a cover page, site plan, exterior elevations, main floor plan, second floor plan, basement plan (future or finished), foundation plan, construction details, roof and vault plans, and interior elevations for special features and cabinets.

There is an element called the title block that has information about the design company, client information, plan information, page numbers, and more that is located on every page within the set.

Cover Page

The cover page is a fairly general page with legends that break down what certain symbols and abbreviations mean throughout. There are also general building notes that are generic to most home builds as well as any other necessary information. I include a general synopsis of project specific information that is helpful at a quick glance for anyone working on the build or at permitting. As well as a sheet index so you easily know what page has information you need. I also include a render of the front elevation and client information.

Example custom home cover page

Site Plan

A site plan has information about how your home plan sits on your land. They can have lots of information including terrain or can be fairly simple and notate the setbacks and any other important boundaries. Overall it’s helpful to see how your home plan will end up fitting on your lot. Not every house requires a site plan, but it’s especially important for tight or odd shaped lots. The site plan is also a good quick look at how your site is oriented and how the sun will travel around your home. This can affect temperature in your home as well as things like melting snow in the middle of winter. If you know you know.

example site plan for new build

Exterior Elevations

The elevations page shows the elevations of each side of your home, which are labeled as front, left, right, and rear. These are straight on views (no perspective/3D aspect) that show anything like materials, heights, roof pitches, windows and doors, and general overall appearance of your home’s exterior. While these drawings convey a lot, it can be difficult to get a good “feel” of what it would be like walking around your home. (Psst… Which is where 3D visuals and walkthroughs come in.) But is a great way to see how the whole home relates to itself. One thing to remember though: You will never actually see your built home from the same angle, so if something looks a bit funny in elevation, but fine in 3D, trust the 3D.

example home exterior elevations

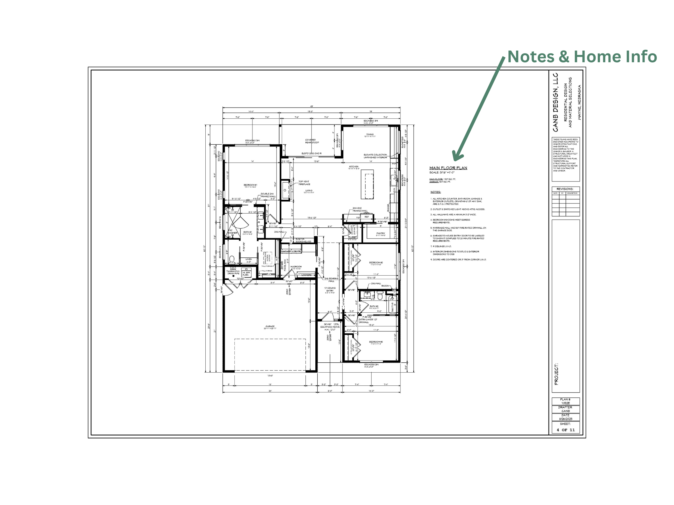
Floor Plans

Floorplans show the layout of each floor of the house, whether it’s a single story ranch or a two story or somewhere in between. These will be packed with information like room dimensions, doors, windows, electrical (in the example photo the electrical was it’s own sheet), LOTS of dimensions, ceiling height information, etc. Floorplans are looked at as though you’ve sliced through the home a couple feet above the floor and looking straight down at what’s left. This is definitely where the symbols and abbreviations from the cover page come in to play to help decipher what’s going on.

example new build home floorplan

Basement Plan

Basement plans are very similar to floorplans for your main and upper floors. Depending on your plans for the home, they may be finished spaces or communicate a future layout a couple years down the road. This layout is important because it makes sure that the space and structure create rooms and layouts that still flow well and are located correctly. Things like egress windows within future bedrooms, a future bath that has plumbing ready to go, etc.

Basement floorplan example

The example for this different than the previous example plans since that home only had a crawl space. But you can see the location of stairs, mechanical, and future bedroom & bathroom.

Foundation Plan

Your foundation plan shows the types of walls, structural details and notes, general details, dimensions for every wall and plumbing drain that needs to be noted, and any special circumstances the foundation contractors need to know, like walk out walls, daylight walls, size of openings, etc.

foundation floorplan example

Roof and Vault Plans

Anymore, most roofs are done with trusses and designed/engineered by whoever is supplying them. That being said, roof and vault plans are a great way to show the roof layout and slopes without extra information. See the example for a diagram on what each label means and looks like. The vault plan shows location of any changes in ceiling height, vaults, and their size and location.

Home roof plan and vault plan example

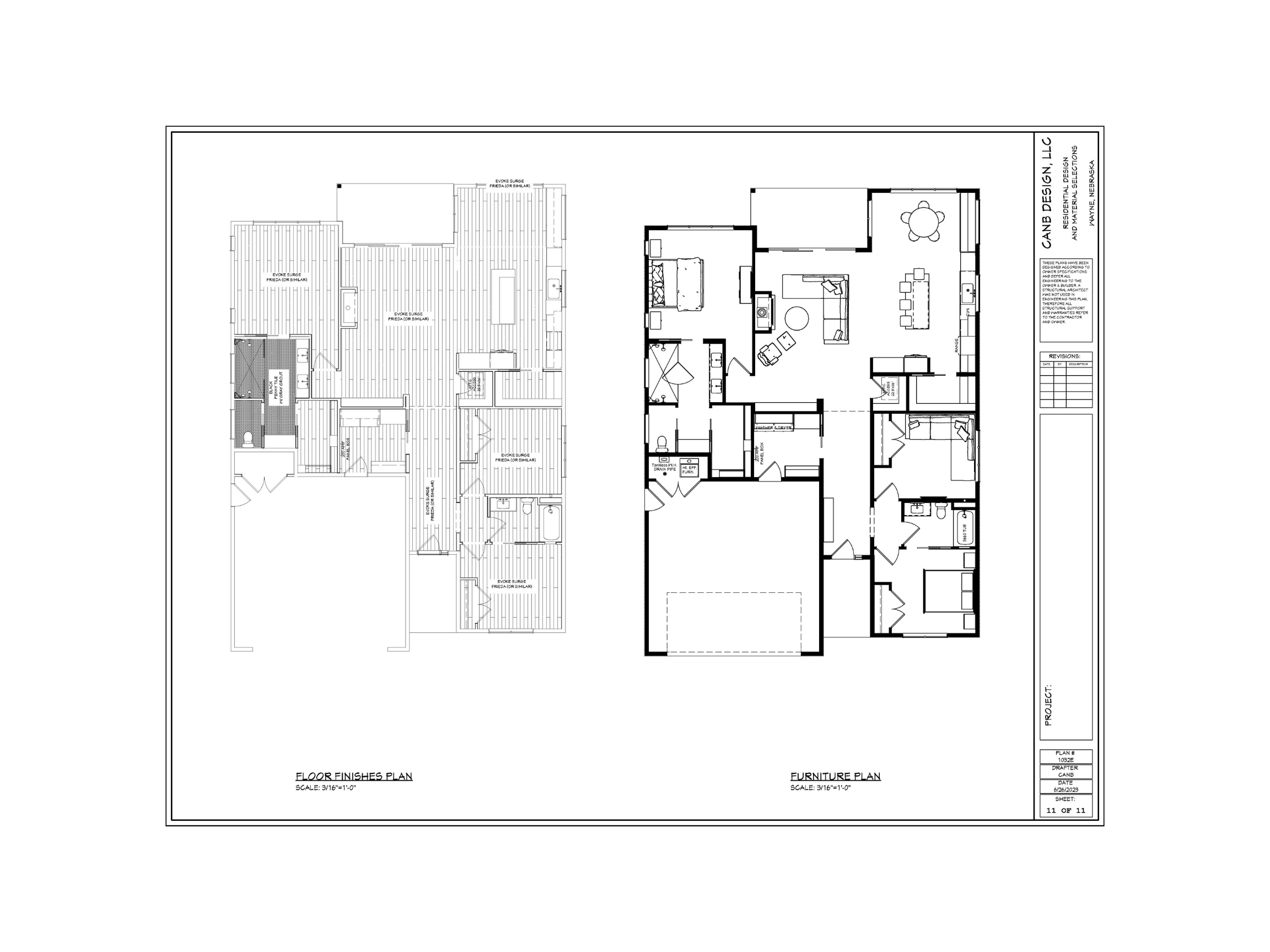
Floor Finishes and Furniture Plans

Floor finishes are the location of each material that will be in a home and the orientation/layout of that material. It’s an easy way to get an overview of tiled vs wood vs carpet areas. There’s not much else to it! And if you happen to add interior design services you’ll get a plan with a furniture layout showing the location and flow of your furniture. That way you know everything fits and there’s no spending days rearranging furniture to find best fit. FYI- If you are doing virtual design services only- this plan will be much more zoomed in on the specific space and have dimensions and necessary notes for you to implement.

Home floor finish materials and furniture layout plan

Interior Elevations

Interior elevations can be one of the most make or break point to you getting a general home or a custom home that feels like YOU! Anything that is special and needs a detail to be clearly communicated gets a zoomed in plan view with an elevation that has dimensions, material placements, and any other details. We specify fireplaces, built in shelves, cabinets, knobs, electrical, etc. Literally anything that needs it!

Interior fireplace, shelves, and cabinet elevations and details

The whole set

So after each of these pages is put together we get a buildable set of plans ready to become your home! As mentioned, each of the sheets has it’s own purpose and information, that help answer questions throughout the home building process and give the contractors a direction.

That being said, sometimes questions arise, and whether something isn’t quite making sense to you or you’re being asked something you can’t answer, CANB Design is always here to help. I want you to be 100% confident in your home design before, during, and after building has started!

And if you’re ready to start down the journey of designing a completely custom home, fill out our contact form and we can start chatting.

Previous
Previous

Bridgerton Made Modern

Next
Next

Laundry Room Update